根据学校前期校园建设规划,为有效缓解学生住宿资源紧张问题,提升校园生活品质,学校拟正式启动新建9#、10#和11#学生宿舍楼项目立项建设工作,现面向全体师生公开征求意见。
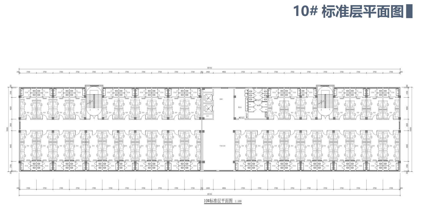
其中,9#、10#学生宿舍楼位于球类训练馆南侧至8#学生宿舍楼之间,11#学生宿舍楼位于老图书馆(B02)北侧。 总建筑面积约为50443.75平方米,其中地上建筑面积43984.14平方米,地下建筑面积6459.61平方米。项目建成后可提供816间宿舍,容纳学生约4644人。
拟参考既有宿舍楼设计经验,增加公共学习空间、自助服务区;协同配套地下人防工程兼顾应急避难与设备用房功能;周边道路、绿化同步改造,减少施工对校园交通影响。
意见反馈方式(截止日期:2025年11月28日):纸质稿递交至主教楼(A01)西配楼七楼基建处705办公室
电话:2909966、2909965
附:新建9#、10#、11#学生宿舍楼项目平面图
安阳工学院基建处
2025年11月20日



